WhatsApp

Ürünler

  • 70 mm Genişlik
  • 36 mm cam uygulama imkanı.
  • Avrupa standartlarında 2.4 mm (± 0.2) et kalınlığı.
  • Isıyı, sesi, suyu ve tozu geçirmeyen özel dizaynlı conta.
  • 2° eğimli su tahliye kanalları.
  • 5 odacıklı sistem ile ısı ve ses izolasyonu.

Teknik Detaylar


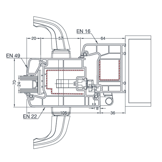
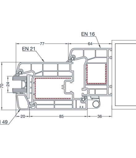
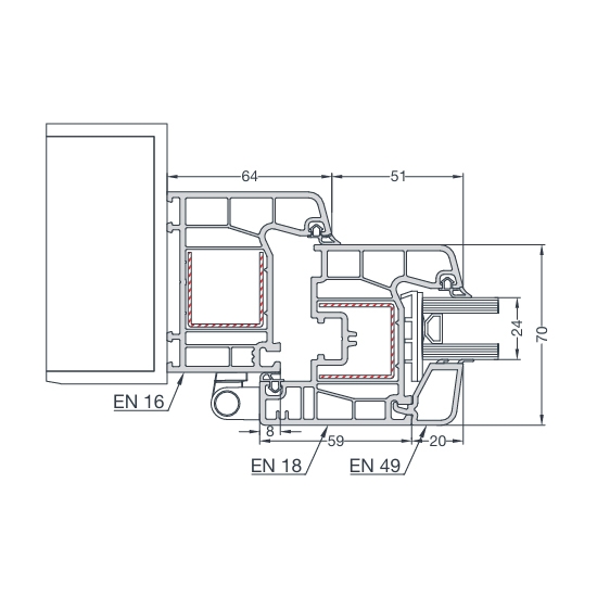
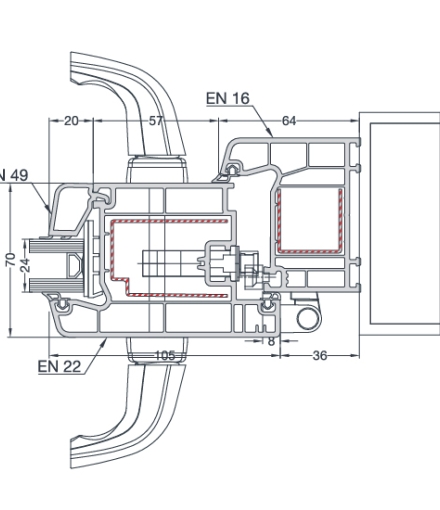
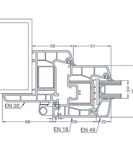
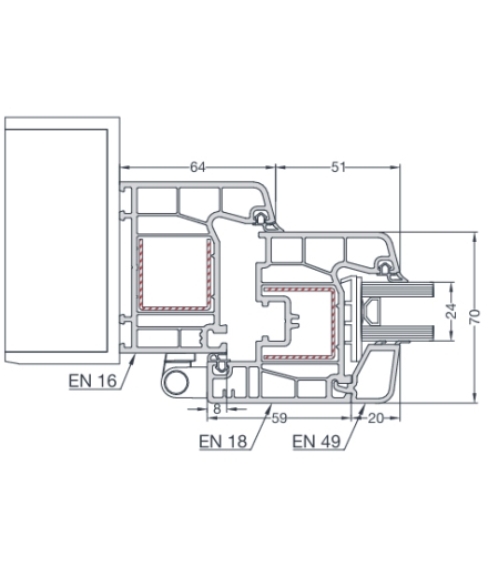
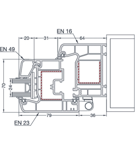
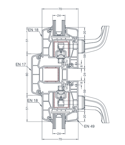
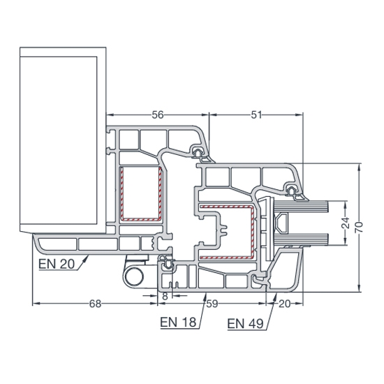
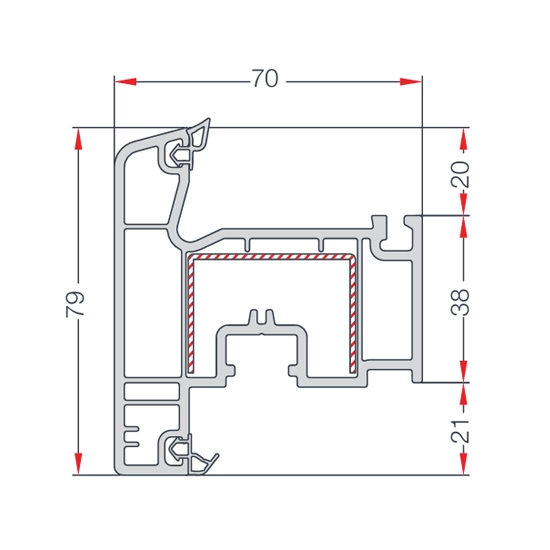
Kasa Genişliği 70 mm

Rüzgar ve Yağmuru Perdeleyen Damlalıklı Kanat Sistemi

36 mm'ye Kadar Cam Uygulama İmkanı

2,4 mm [± 0,2 mm] Et Kalınlığı

2 Eğimli Su Tahliye Kanalları

Uf = 1.4 W/m2K

5 Odacıklı Sistem İle Isı ve Ses İzolasyonu

Profiller

Uygulama Çizimleri

Cam Çıtaları ve Yardımcı Profiller

Cam Çıtası Uygulamaları

Cam Çıtaları

Yardımcı Aluminyum Profiller

Yardımcı Profiller